■所在地
福岡市博多区博多駅南5丁目25番7号

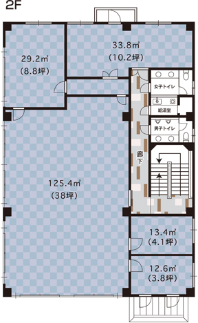
3階建・3フロア
■交通
・博多駅より車で約7分
・博多駅と竹下駅の間に位置し両駅より2㎞圏内。
・西鉄バス・榊田町バス停より徒歩2分
■設備
【OAフロア】
便利な床下配線システムでオフィスレイアウトが自由自在
【防犯カメラ】
防犯カメラ・録画システムでセキュリティも万全
【喫煙室・エアコン】
■駐車場
収容台数・30台(
駐車場図面)
(1台・月12,000円+税・軽10,000円+税)
駐輪場(バイク6台・自転車8台)
■一棟貸の場合
専有面積:642.8m²(194.8坪)3階建貸
家賃:1,151,400円
敷金:5,340,000円
共益費: 30,000円
※坪単価は事務所占有部分面積の計算です